
UPDATED:
Key Details
Property Type Single Family Home, Townhouse
Sub Type Townhouse
Listing Status Active
Purchase Type For Sale
Square Footage 1,070 sqft
Price per Sqft $392
MLS® Listing ID A2194425
Style Bungalow
Bedrooms 2
Year Built 2025
Lot Size 2,475 Sqft
Acres 2475.0
Property Sub-Type Townhouse
Source Medicine Hat Real Estate Board Co-op
Property Description
Location
Province AB
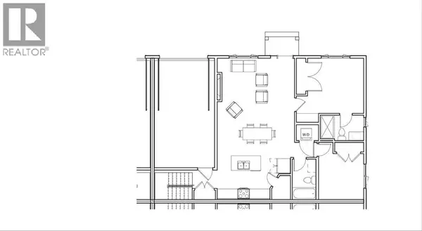
Rooms
Kitchen 0.0
Extra Room 1 Main level 18.00 Ft x 16.67 Ft Other
Extra Room 2 Main level 12.33 Ft x 16.67 Ft Living room
Extra Room 3 Main level Measurements not available 4pc Bathroom
Extra Room 4 Main level 12.33 Ft x 10.33 Ft Bedroom
Extra Room 5 Main level 12.33 Ft x 14.83 Ft Primary Bedroom
Extra Room 6 Main level Measurements not available 3pc Bathroom
Interior
Heating Forced air
Cooling Central air conditioning
Flooring Vinyl
Fireplaces Number 1
Exterior
Parking Features Yes
Garage Spaces 1.0
Garage Description 1
Fence Not fenced
View Y/N No
Total Parking Spaces 2
Private Pool No
Building
Story 1
Architectural Style Bungalow
Others
Ownership Freehold
GET MORE INFORMATION

Kevin Scharfenberg
Personal Real Estate Corporation | License ID: 180491
Personal Real Estate Corporation License ID: 180491




