REQUEST A TOUR If you would like to see this home without being there in person, select the "Virtual Tour" option and your agent will contact you to discuss available opportunities.
In-PersonVirtual Tour

$1,700,000
Est. payment /mo
5 Beds
5 Baths
3,818 SqFt
UPDATED:
Key Details
Property Type Single Family Home
Sub Type Freehold
Listing Status Active
Purchase Type For Sale
Square Footage 3,818 sqft
Price per Sqft $445
MLS® Listing ID R3016149
Style 2 Level
Bedrooms 5
Lot Size 4,000 Sqft
Acres 4000.0
Property Sub-Type Freehold
Source Greater Vancouver REALTORS®
Property Description
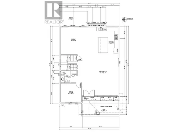
Albion Park Place - A fantastic new single family home development with approved multi-suites for maximum rental income opportunities under the new province Small Scale Multi-Housing Legislation. 3,818 sq.ft of living space featuring 5 bedrooms, 4.5 bathrooms and 3 kitchens total. The main floor offers an open concept plan with a large kitchen, great room, dining room and office. Upstairs, 2 bedrooms share a Jack&Jill bathroom. Enjoy the large primary bedroom & balcony with a walk in closet & an oversized ensuite bathroom. Laundry is also located upstairs for easy access. The basement features two separate 1 bedroom, 1 bathroom legal suites with their own laundry. A great rental income producing property! Park on both sides and schools located nearby. Inquire today! (id:24570)
Location
Province BC
Rooms
Kitchen 0.0
Interior
Heating Baseboard heaters, Forced air
Fireplaces Number 1
Exterior
Parking Features Yes
View Y/N Yes
View View
Private Pool No
Building
Architectural Style 2 Level
Others
Ownership Freehold
GET MORE INFORMATION

Kevin Scharfenberg
Personal Real Estate Corporation | License ID: 180491
Personal Real Estate Corporation License ID: 180491




